Предложение от которого невозможно отказаться!
- 895 500BYN
- 895 500BYN
Описание
Предложение от которого сложно отказаться!
Единичное предложение на рынке недвижимости Минска.
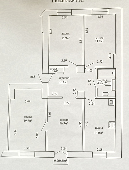
Роскошный вариант в самом Центре столицы – 4-комнатная квартира с индивидуальным проектом.
Высокие потолки позволяют прочувствовать пространство данной квартиры.
Наша квартира – это не про модный ремонт с его натяжными потолками и ламинатом.
Это квартира про дух времени, связь с историей, и конечно же про избранных.
Кирпичные стены, всего 4 этажа и ВНИМАНИЕ 2 квартиры на этаже.
14-метровая кухня позволяет собрать всю семью на ужин за круглым столом.
В квартире просторные комнаты и прихожая.
На полу сохранен ТОТ самый дубовый паркет.
Спешите стать обладателем уникальнейшей квартиры!
Звоните и записывайтесь на просмотр.
Адрес
Открыть на Яндекс Картах-
Город: Минск
Детали
Обновлено по 6 апреля, 2026 в 5:57 дп-
Цена 895 500BYN
-
Размер объекта недвижимости 95,6 м²
-
Площадь по СНБ, м² 95,9 м²
-
Спальни 3
-
Комнаты 4
-
Площадь кухни, м² 14
-
Год постройки 1953
-
Тип недвижимости Четырехкомнатные квартиры, Квартиры
-
Статус недвижимости Продать
-
Этаж/Этажность 3/4
-
Балкон/Лоджия Балкон
-
Лифт Нет
-
Мебель Частично
-
Ремонт Евро
-
Санузел Совмещенный
-
Высота потолков, м от 3 м
-
Материал стен Кирпичный
-
Номер договора 19/1
-
Дата договора ДД/ММ/ГГ 16.03.2026
-
Метро Площадь Ленина
-
Минут до метро 5
Контактная информация
Смотреть листинг- Наталья

































